Ella Mccay
CLAIRE FOLGER/20TH CENTURY STUDIOS
Drawing made for the trellis needed for Ryan's early morning escape from Ella's second story bedroom. We worked with the existing conditions of the house and replaced the wood trellis with steel for safety.
Book case drawing made for Casey's childhood bedroom. The final product never made it onto screen.
moulding notes from the existing mantel in Casey's childhood bedroom.
The Government Insignia drawing to cover up the existing Rhode Island Insignia on the governors desk
1/2 Paint elevations and tracking for Helen's bar. I created the tracking paperwork + renderings. These elevations + Matterport of the space were handed off to the Art Director for reshoots in New Orleans.
2/2 Paint elevations and tracking for Helen's bar. I created the tracking paperwork + renderings. These elevations + Matterport of the space were handed off to the Art Director for reshoots in New Orleans.
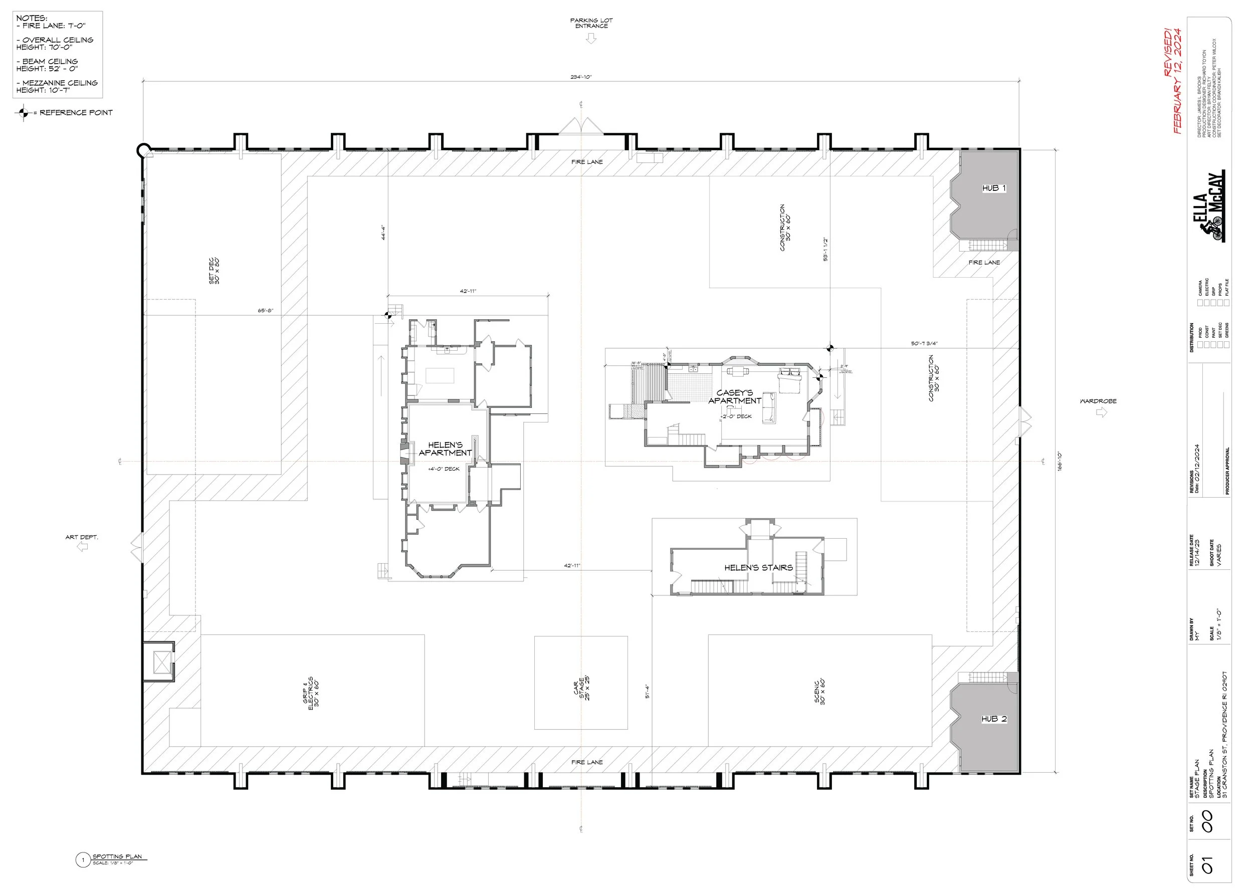
Spotting plan for all stage sets + department spaces
Mock up made for Ella's Inauguration day. We played around with different bunting shapes, sizes, and quantities before landing on the final image above.
Survey of existing conditions of Ella's family home seen in the funeral scene. The addition of the columns to the space had been floated, but ended up being scrapped.
1/4 Hardware schedule for Aunt Helen's (Jamie Lee Curtis) Apartment + Stairwell. While the apartment made it into the film, the stairwell did not.
2/4 Hardware schedule for Aunt Helen's (Jamie Lee Curtis) Apartment + Stairwell. While the apartment made it into the film, the stairwell did not
3/4 Hardware schedule for Aunt Helen's (Jamie Lee Curtis) Apartment + Stairwell. While the apartment made it into the film, the stairwell did not
4/4 Hardware schedule for Aunt Helen's (Jamie Lee Curtis) Apartment + Stairwell. While the apartment made it into the film, the stairwell did not
1/2 Paint elevations for Gov. Bill's phone room
2/2 Paint elevations for Gov. Bill's phone room
1/9 Helen's Apartment + Stairwell paint, wallpaper, and stained glass elevations. These elevations + Matterport of the space were handed off to the Art Director for reshoots in New Orleans.
2/9 Helen's Apartment + Stairwell paint, wallpaper, and stained glass elevations. These elevations + Matterport of the space were handed off to the Art Director for reshoots in New Orleans.
3/9 Helen's Apartment + Stairwell paint, wallpaper, and stained glass elevations. These elevations + Matterport of the space were handed off to the Art Director for reshoots in New Orleans.
4/9 Helen's Apartment + Stairwell paint, wallpaper, and stained glass elevations. These elevations + Matterport of the space were handed off to the Art Director for reshoots in New Orleans.
5/9 Helen's Apartment + Stairwell paint, wallpaper, and stained glass elevations. These elevations + Matterport of the space were handed off to the Art Director for reshoots in New Orleans.
6/9 Helen's Apartment + Stairwell paint, wallpaper, and stained glass elevations. These elevations + Matterport of the space were handed off to the Art Director for reshoots in New Orleans.
7/9 Helen's Apartment + Stairwell paint, wallpaper, and stained glass elevations. These elevations + Matterport of the space were handed off to the Art Director for reshoots in New Orleans.
8/9 Helen's Apartment + Stairwell paint, wallpaper, and stained glass elevations. These elevations + Matterport of the space were handed off to the Art Director for reshoots in New Orleans.
9/9 Helen's Apartment + Stairwell paint, wallpaper, and stained glass elevations. These elevations + Matterport of the space were handed off to the Art Director for reshoots in New Orleans.
1/7 Casey's Apartment paint, stain, and tile elevations. These elevations + Matterport of the space were handed off to the Art Director for reshoots in New Orleans.
2/7 Casey's Apartment paint, stain, and tile elevations. These elevations + Matterport of the space were handed off to the Art Director for reshoots in New Orleans.
3/7 Casey's Apartment paint, stain, and tile elevations. These elevations + Matterport of the space were handed off to the Art Director for reshoots in New Orleans.
4/7 Casey's Apartment paint, stain, and tile elevations. These elevations + Matterport of the space were handed off to the Art Director for reshoots in New Orleans.
5/7 Casey's Apartment paint, stain, and tile elevations. These elevations + Matterport of the space were handed off to the Art Director for reshoots in New Orleans.
6/7 Casey's Apartment paint, stain, and tile elevations. These elevations + Matterport of the space were handed off to the Art Director for reshoots in New Orleans.
7/7 Casey's Apartment paint, stain, and tile elevations. These elevations + Matterport of the space were handed off to the Art Director for reshoots in New Orleans.
An existing location was selected to build our Moore Campaign Phone Room. To better understand existing conditions in the space, I conducted a survey of the room and 3D modeled it in SketchUp. I then created a walkthrough for the Art Director and Production Designer. We ended up adding the stairwell entrance and back wall for district maps. The Matterport scan is the final product for camera.

